上海市嘉定区人民政府
无障碍版
|
关怀版
|
用户中心
|
门户首页
首 页
工作动态
规划资源业务
规划审批
营商环境
执法监督
许可公告
信息公开
一网通办
单位信箱
调查征集
您的位置:
首页
>
规划资源业务
>
许可公告
>详细内容
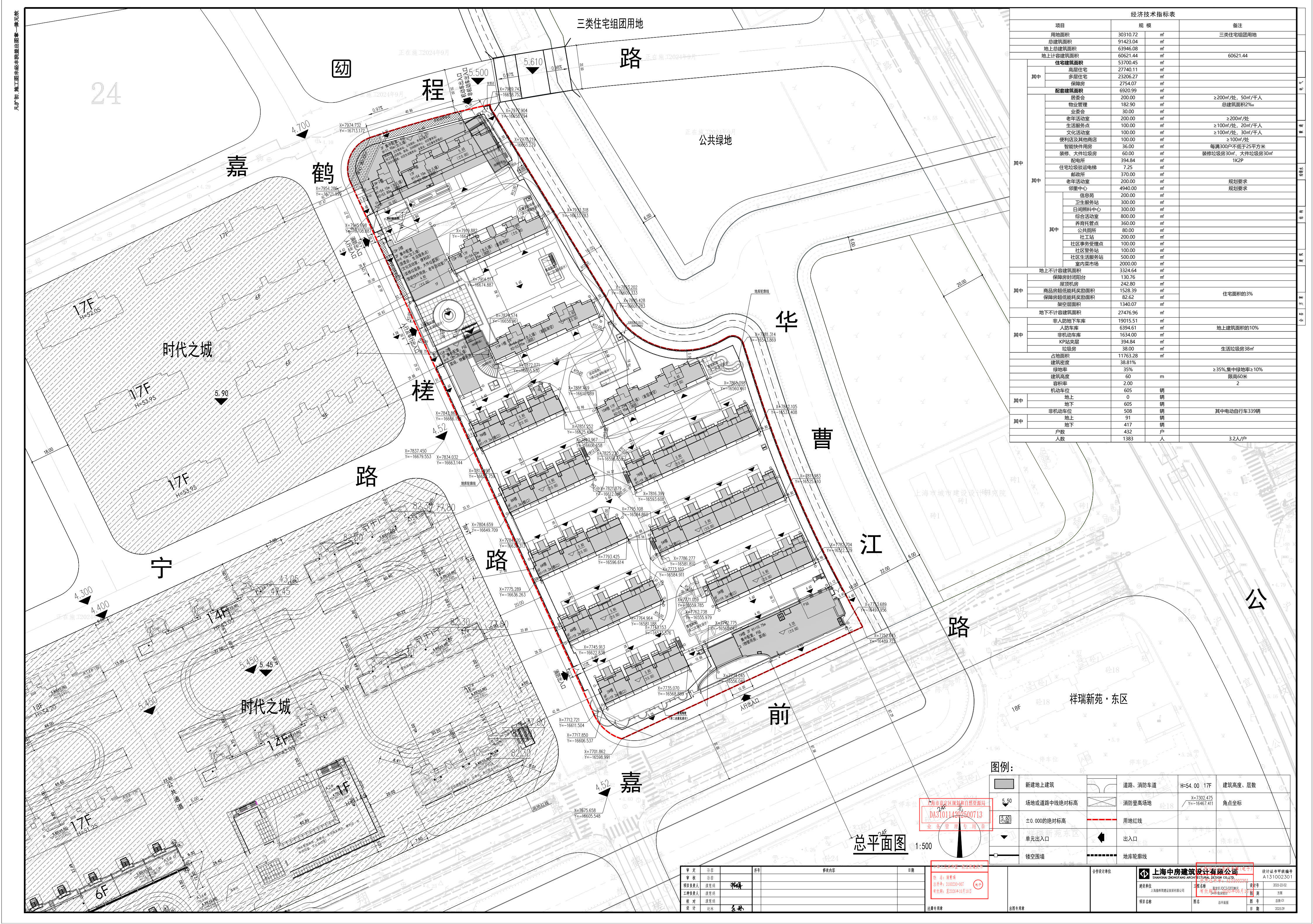
沪嘉方(2025)DA310114202500713设计方案许可公告(上海嘉桦茂建设发展有限公司)
作者:上海市嘉定区规划和自然资源局
发布时间:2025-09-29
浏览次数:
次
信息来源:上海嘉定
分享到: