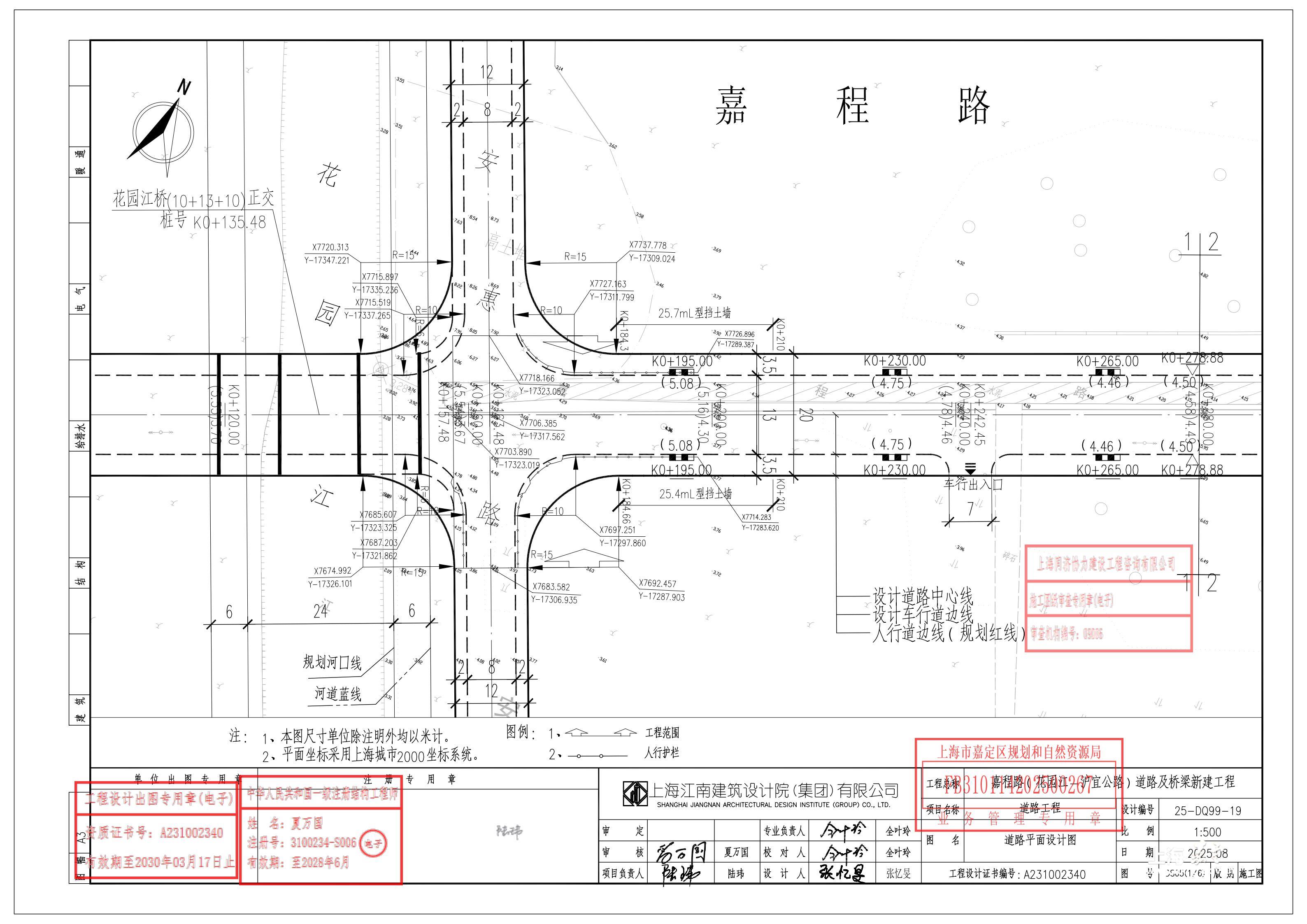
沪嘉建(2025)FB310114202500267规划许可公告(上海市嘉定区南翔镇人民政府)

作者:上海市嘉定区规划和自然资源局 发布时间:2025-10-16 浏览次数: 信息来源:上海嘉定

d636aa65c04146168ecb13dac93c03eb.jpg

52d229435ce84182a27f5fda461e553d.jpg

ff6c575dc64c43cbaed9351a566ada4d.jpg

eede3b5f64d041debf39d9b3b536f40b.jpg

635a8ff54d1847039d748f5fd026895b.jpg

54efa55098dd4ee4a61732d6a3ecfd1d.jpg

17efb62fbb4b4680a7b851d1a9f22a18.jpg


分享到: